Omschrijving
Op een zeer familievriendelijke locatie in de “Schilderswijk” staat dit half vrijstaande herenhuis met karaktervolle Amsterdamse School details en aangebouwde houten berging- c.q. opslagruimte met achterom. Op loopafstand scholen en om de hoek van de winkelstraat de “Jan van Goyenstraat”. Dit is een op en top Familiehuis in een origineel karakteristieke bouwstijl (bouwjaar 1920). In 2011 verbouwd naar de moderne comfort- en duurzaamheid standaard met oog voor bestaande details.
Het huis heeft een zonnige brede achtertuin met terras (ca. 12 x 8,50 mtr.) op het Zuid-Westen en een mooi vrij zicht naar achteren met veel privacy, naast het huis een houten aangebouwde berging/opslagruimte/fietsenstalling op stenen voeting met fundering. De tuin heeft ook een achterom. Tevens aanwezig een ruime brede voor- en zijtuin en openbaar parkeren voor de deur. Eigen parkeerplek op eigen terrein via inrit mogelijk te realiseren.
Centraal gelegen op loop- of fietsafstand van winkelstraat Jan van Goyen, de Binnenweg, diverse sportfaciliteiten o.a. de Koninklijke HFC, Roeivereniging Het Spaarne en Alliance Hockey, diverse lagere- en middelbare Scholen, Openbaar vervoer als Bus en NS-station Heemstede/Aerdenhout. Uitvalswegen naar o.a. Amsterdam en Schiphol snel bereikbaar.
Ook de Haarlemmerhout en het Spaarne zijn op loopafstand. De Kennemer Duinen, het strand en de stad Haarlem op fietsafstand.
Een woning met volume, hoge verdiepingen, ruime moderne woonkeuken met erker, royale hal met trappenhuis, L-vormige huiskamer met fraaie karaktervolle parketvloeren met dubbele bies doorlopend in lichte serre met openslaande deuren naar een zonnige tuin. Op de verdiepingen vijf royale slaapkamers
INDELING:
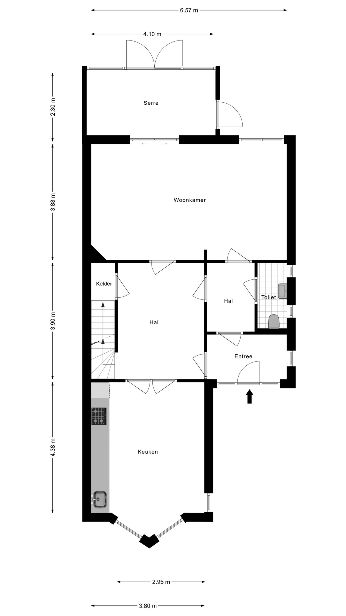
Parterre:
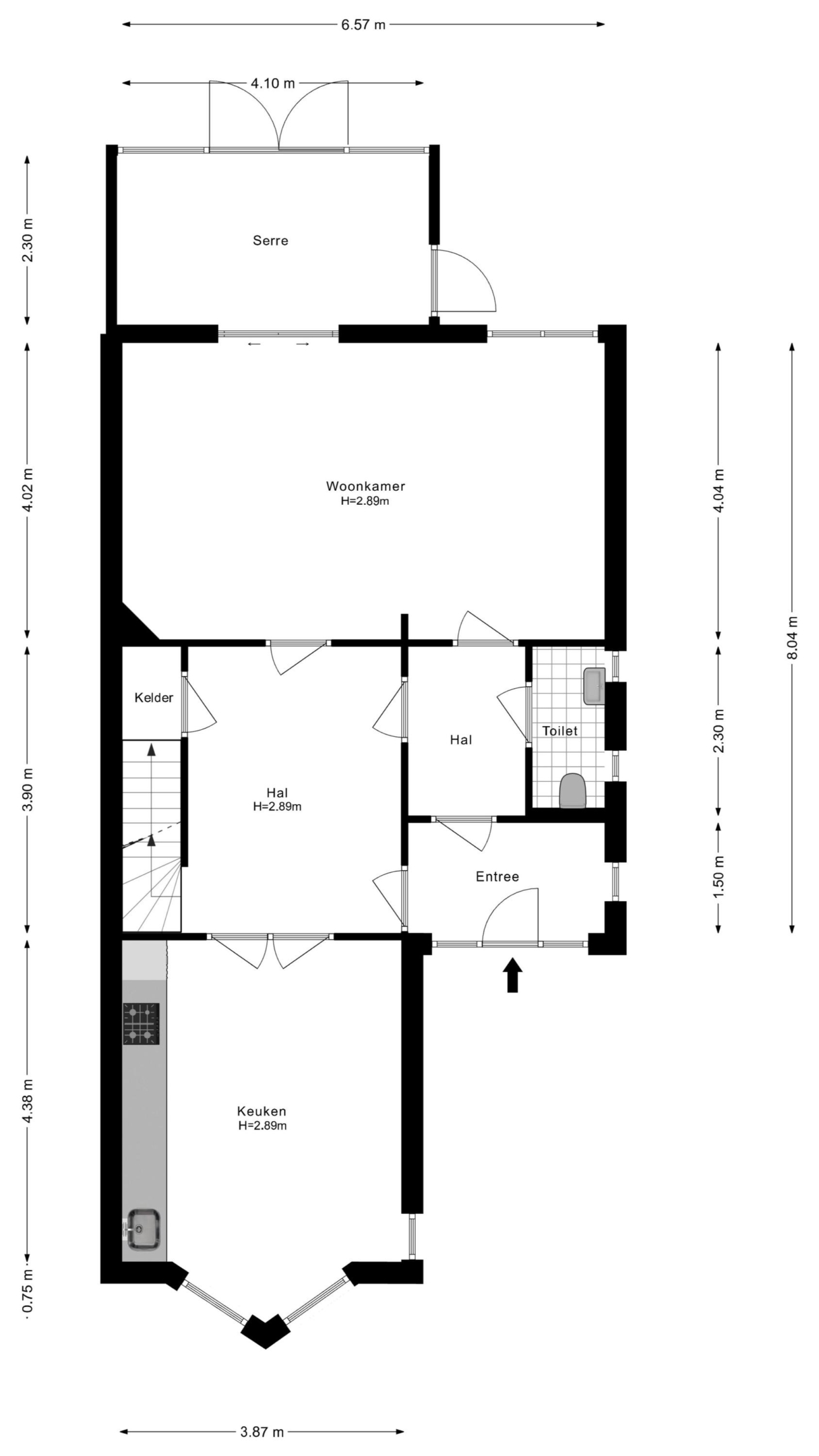
Fraaie entree met teakhouten voordeur, ruim tochtportaal met mooie marmeren vloerplaten en originele glas in lood deur, royale hal met fraai Amsterdamse School trappenhuis en karaktervolle schouw, ondergelegen ruime kelderruimte, tussenhal c.q. garderobe, apart toilet (zwevend) met hardstenen fontein, ruimte gezellige L-vormige living met brede visgraat parketvloeren met dubbele bies doorlopend in serre. De serre heeft schuifdeuren en openslaande deuren naar de tuin (ZW).
Een moderne woonkeuken met voorerker en diverse RVS inbouw- en losse apparatuur, RVS-aanrechtblad en stenen vloer.
1e etage:
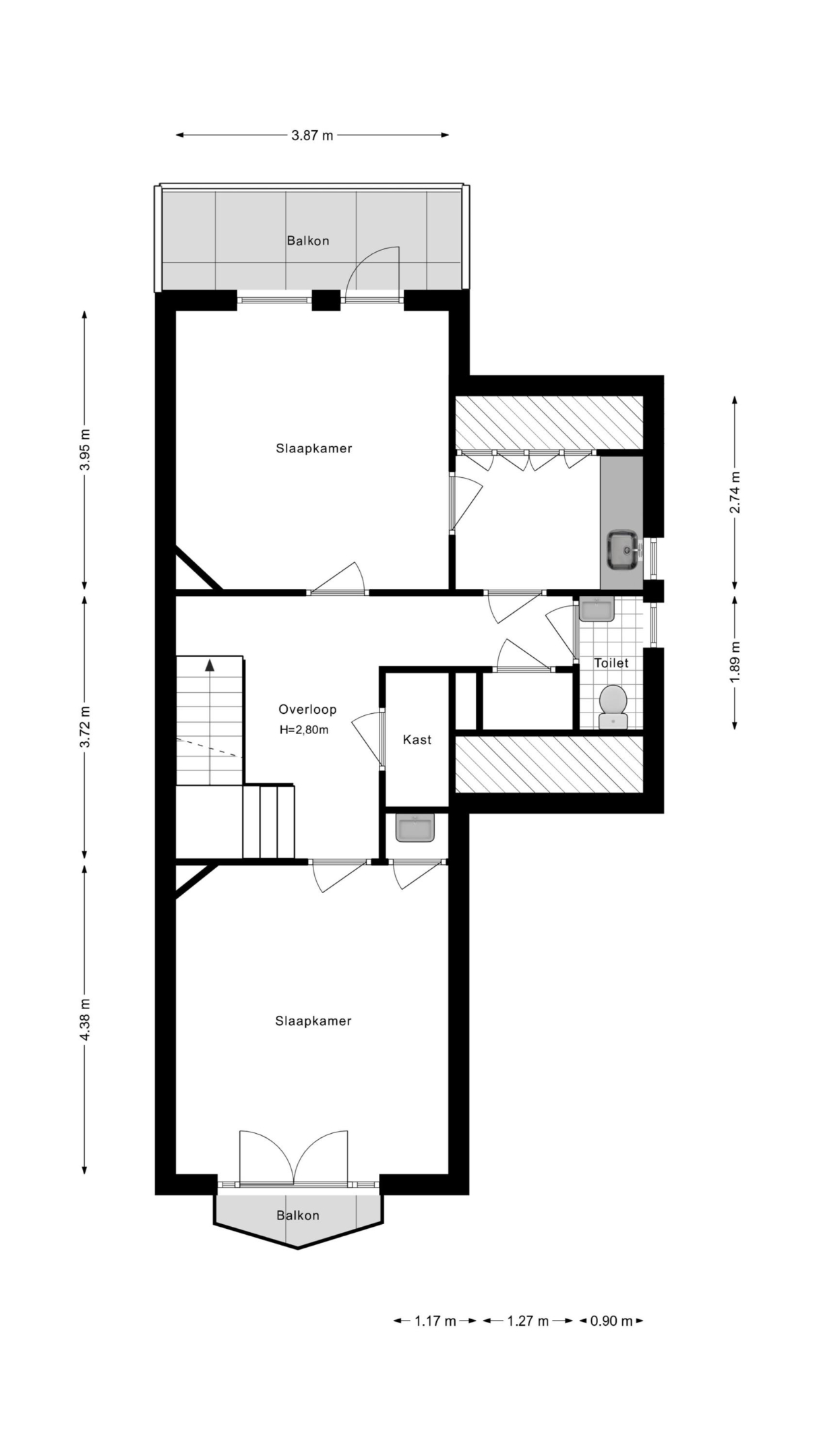
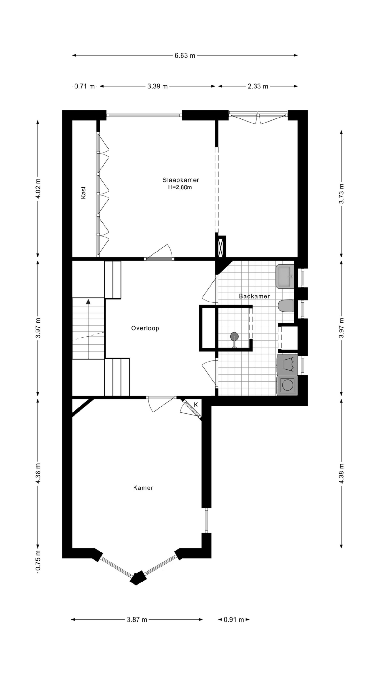
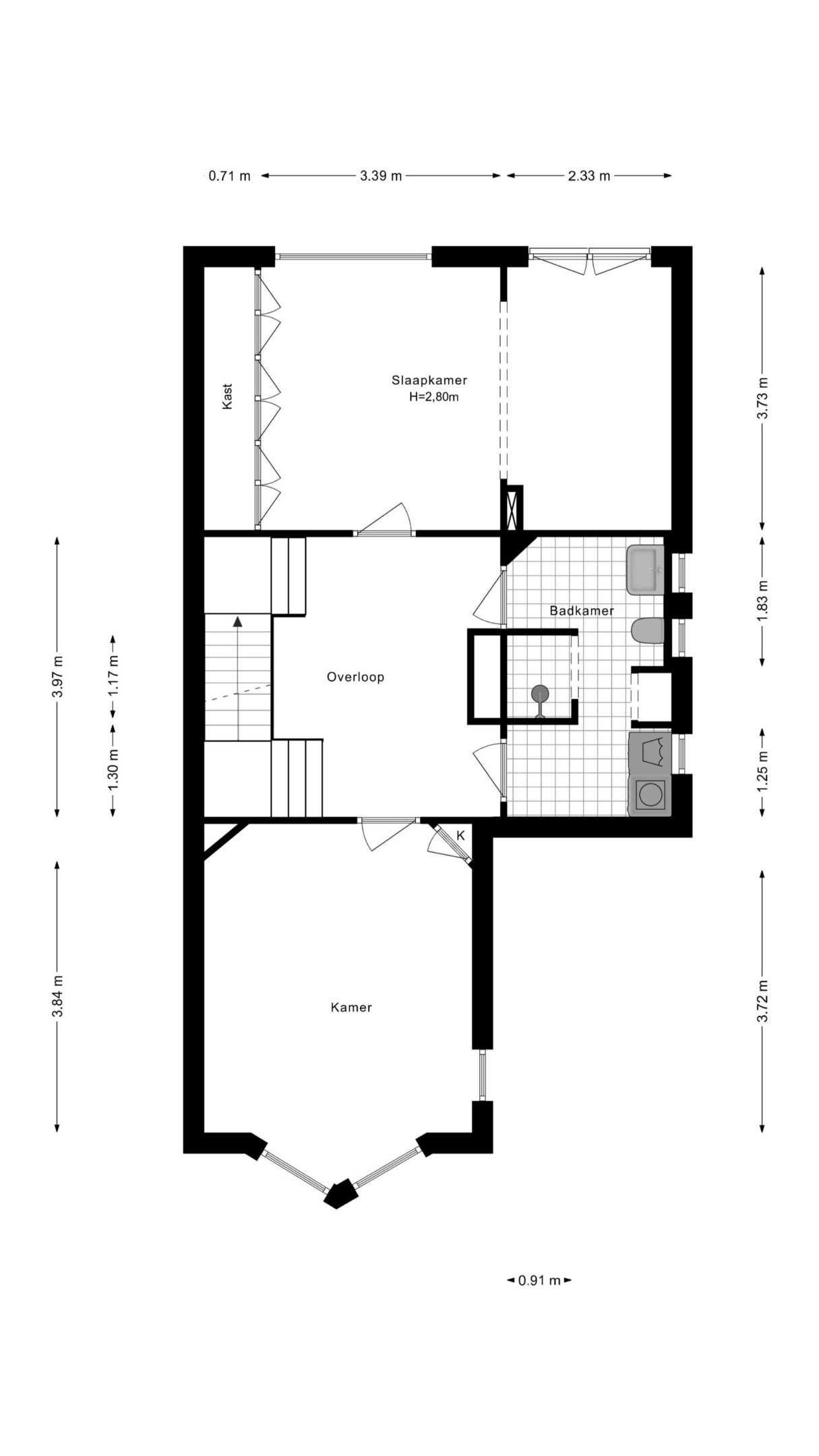
De trap heeft een dubbel bordes en komt uit op een ruime overloop met stijlvolle schouw. De eerste verdieping is geheel voorzien van visgraat parketvloer. Vanuit de overloop toegang tot de kamers. De voorslaap- werkkamer met schouw, erker en inbouwkast. De royale achterslaapkamer (voorheen 2 kamers) met erker, kastenwand en openslaande deuren naar frans balkon (ZW), tussenliggende moderne ruime badkamer met inloopdouche, 2e toilet (zwevend), wastafel en wasmachine/droger aansluiting en CV-ketel.
2e etage:
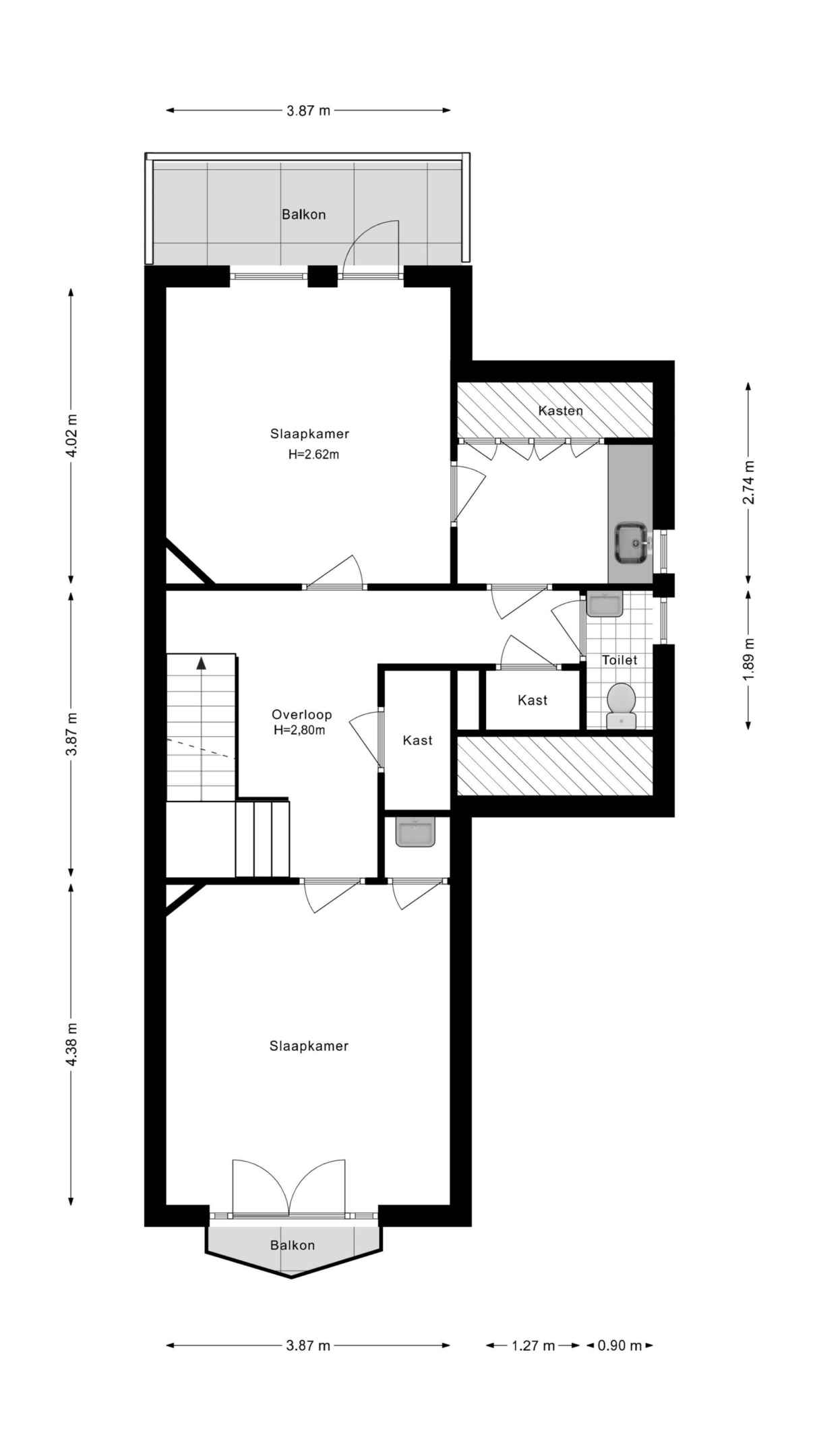
Via bordestrap naar ruime overloop. Vanaf deze overloop toegang tot drie kamers en twee ruimte vaste kasten. Ruime voorslaapkamer met schouw, inbouwkast met wastafel en openslaande deuren naar balkon (O); Ruime achterslaapkamer met schouw en groot balkon (ZW); 2e pantry met opslagruimte, aparte 3e toilet met fontein.
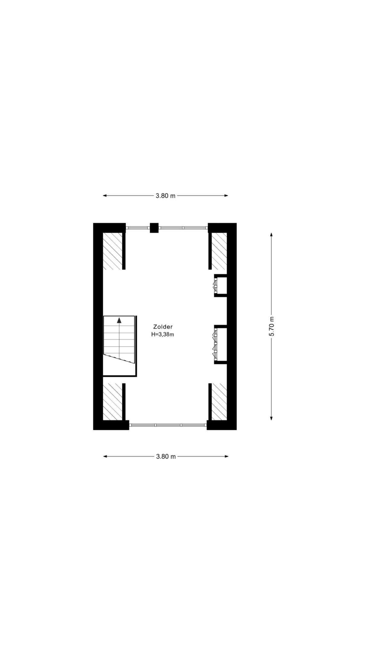
3e etage:
Via bordestrap naar royale zolderruimte v.v. 2 dakkapellen, inbouwopslagruimten, Zonneboileropstelling (warmwater), WTW-installatie (ventilatie), Zonnepanelen (elektrisch); Vliering via een luik bereikbare.
BIJZONDERHEDEN:
• Totale grondoppervlakte ca. 270 m2
• Totale woonoppervlakte ca. 228 m2 (conform NEN 2580)
• Totale inhoud ca. 851 m3
• 5 slaapkamers (voorheen 6)
• WTW (warmte-terug-win) geïntegreerd ventilatiesysteem professioneel in 2011 aangebracht
• Elektra leidingen, bekabeling, groepenkast 12 groepen, aardlekschakelaars en krachtstroom geheel vernieuwd in 2011
• Riolering in PVC vernieuwd, goten, zink- en loodwerk en alle daken (pannen en platte gedeeltes) vernieuwd in 2011
• C.V.-HR-combi-ketel en zonneboiler met C.V.-naverwarming
• Op platte daken 6 zonnepanelen
• Fundering op staal (gemetselde fundering) Serre en schuur op pulspalen
• Diverse originele details nog aanwezig o.a. fraaie hoogte plafond parterre, origineel trappenhuis, inwendige originele paneeldeuren etc.
• Energielabel C tot 31-12-2030
• Geheel v.v. dubbel glas HR++ in nieuw houten ramen (2011)
• Parterrevloer-, spouwmuur- en dakisolatie toegepast
• Ruime aangebouwde houten berging- c.q. opslagruimte van 2011
• 2 dakkapellen toegepast in 2011 op zolderetage
Deze zeer royale praktische en kindvriendelijke half vrijstaande herenhuis met veel karakteristieke Amsterdamse School details en zonnige brede voor- en achtertuin op het Z-Westen is absoluut het bezichtigen waard!