Te koop

Appartement, Leiduinstraat 29-1 in Amsterdam

€ 500.000,- k.k.
C
55 m2 woonoppervlakte - 3 kamers

Omschrijving

***ENGLISH VERSION BELOW***

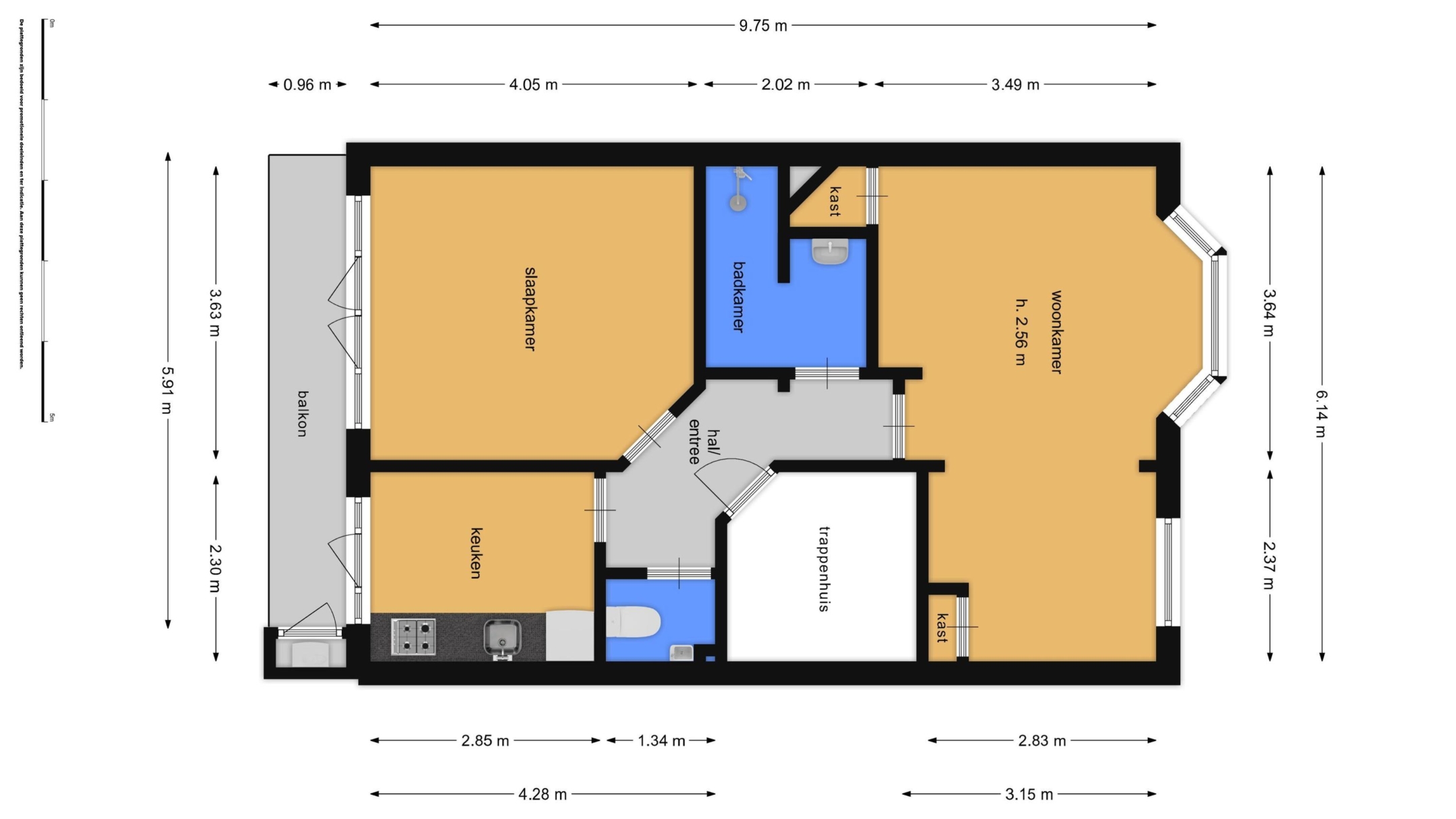
Dit sfeervolle tweekamerappartement is in 1934 gebouwd aan een rustige straat in de gezellige Hoofddorppleinbuurten en staat op eigen grond. De woning is in 2020 volledig gerenoveerd en in 2022 zijn vloeren en plafonds vernieuwd. Het appartement beschikt over een ruime woonkamer, een aparte keuken, een comfortabele slaapkamer en royale badkamer. Er is een balkon aan de achterkant gebouwd over de volle breedte, gelegen op het zuidoosten.
Op de derde verdieping is een eigen berging met verwarming en dakkapel, bestaande uit twee delen. De berging wordt momenteel gebruikt als werkkamer en opslag.

INDELING
Eerste verdieping
• Entree met voordeur op de eerste verdieping
• Hal
• Wc met fonteintje
• Lichte woonkamer met erker en twee inbouwkasten
• Keuken v.v. combinatie droog- en wasmachine, afwasmachine, fornuis, afzuigkap, koel-vriescombinatie, combi oven magnetron en toegang tot het balkon
• Slaapkamer met kledingkast en openslaande deuren naar het balkon
• Ruime badkamer met inloopdouche, wastafelmeubel met bijpassende kast en badkamerspiegel met spiegelverwarming; vloerverwarming

Derde verdieping
• Bij het appartement hoort een eigen berging op de derde verdieping. Deze is momenteel in gebruik als werkkamer, voorzien van dakkapel en heeft aparte vaste kastruimte

Overige kenmerken:
• Woning is voorzien van dubbel glas, met uitzondering van de berging
• Houten visgraat parketvloer uit 2022
• Plafonds vernieuwd in 2022
• Energielabel volgt
• Cv-opstelling Remeha Tzerra (2020) bevindt zich in balkonkast
• De erfpachtcanon is afgekocht tot 01-04-2063
• Actieve VvE wordt professioneel beheerd
• Gebruiksoppervlak van ruim 55 m2 is exclusief werk- en bergruimte op de derde verdieping
• Balkon is afgewerkt met houten vlonders
• Maandelijkse bijdrage VvE: €192,-

Locatie:
Deze woning bevindt zich in de geliefde Hoofddorppleinbuurt, een levendige woonomgeving waar alles binnen handbereik is. Op slechts enkele minuten lopen vindt u een breed aanbod aan winkels, supermarkten en gezellige cafés & restaurants. Voor ontspanning in het groen liggen het Vondelpark, de Nieuwe Meer, het Amsterdamse Bos, het Rembrandtpark en de Westlandgracht praktisch om de hoek. Sportliefhebbers kunnen terecht bij diverse sportclubs en Sportpark De Schinkel. Ook scholen en andere voorzieningen bevinden zich op de spreekwoordelijke steenworp afstand, hetgeen deze locatie bijzonder compleet en aantrekkelijk maakt.

Bereikbaarheid is uitstekend!
• Openbaar vervoer: Tram 2 brengt u direct naar het centrum, bus 15 naar station Zuid.
• Auto: Binnen enkele minuten bent u op de Ringweg A10.
• Parkeren: Betaald parkeren of met vergunning.

Deze informatie is met zorg samengesteld. Ten aanzien van de juistheid van de informatie kan door VanHuyse geen aansprakelijkheid worden aanvaard, noch kan hieraan enig recht worden ontleend.

De Meetinstructie is gebaseerd op de NEN2580. Het object is opgemeten door een professionele organisatie en eventuele discrepanties in de gegeven metingen kunnen VanHuyse niet worden aangerekend. Koper wordt in de gelegenheid gesteld een eigen NEN 2580 meting de (laten) uitvoeren.

ENGLISH VERSION
This charming one-bedroom apartment was built in 1934 on a quiet street in the lively and sought-after Hoofddorpplein neighbourhood. The property was fully renovated in 2020, and the floors and ceilings were renewed in 2022. The apartment features a spacious living room, a separate kitchen, a comfortable bedroom and a generous bathroom. At the rear, a full-width balcony has been added, facing southeast.
On the third floor, there is a private storage room with a dormer window, consisting of two sections. This space is currently used as a home office and storage area.

LAYOUT
First floor
• Entrance with front door on the first floor
• Hallway
• Toilet with small washbasin
• Bright living room with bay window and two built-in cupboards
• Kitchen equipped with a washer-dryer combination, dishwasher, stove, extractor hood, fridge-freezer, combi oven-microwave, and access to the balcony
• Bedroom with wardrobe and French doors opening onto the balcony
• Spacious bathroom with walk-in shower, washbasin cabinet with matching cupboard, and heated mirror; underfloor heating

Third floor
• The property includes a private storage room on the third floor. This space is currently used as a heated home office with a dormer window and separate built-in storage

Additional features
• Double glazing throughout, except in the storage room
• Herringbone parquet floor installed in 2022
• Ceilings renewed in 2022
• Energy label pending
• Central heating system (Remeha Tzerra, 2020) located in the balcony cupboard
• Ground lease paid off until 01-04-2063
• Active homeowners’ association (VvE), professionally managed
• Total usable area of over 63 m², including the workspace on the third floor
• Balcony finished with wooden decking
• Monthly VvE contribution: €192

Location
This property is situated in the beloved Hoofddorpplein neighbourhood, a vibrant residential area where everything is within easy reach. Just a few minutes’ walk away, you’ll find a wide range of shops, supermarkets, and cosy cafés and restaurants. For green outdoor relaxation, the Vondelpark, Nieuwe Meer, Amsterdamse Bos, Rembrandtpark and Westlandgracht are practically around the corner. Sports enthusiasts can enjoy various sports clubs and Sportpark De Schinkel. Schools and other amenities are also just a stone’s throw away, making this location exceptionally complete and appealing.
Excellent accessibility
• Public transport: Tram 2 takes you directly to the city centre, bus 15 to Station Zuid
• By car: Within minutes you can reach the A10 Ring Road
• Parking: Paid parking or by permit

This information has been compiled with care. VanHuyse cannot accept liability for any inaccuracies, nor can any rights be derived from this information.
The measurement guidelines are based on NEN2580. The property has been measured by a professional organisation, and any discrepancies in the stated measurements cannot be attributed to VanHuyse. The buyer will be given the opportunity to carry out their own NEN2580 measurement.

Kenmerken Appartement, Nederland koop Appartement Amsterdam Leiduinstraat 29-1

Overdracht

  • Adres: Leiduinstraat 29-1, 1058 SG Amsterdam
  • Vraagprijs: € 500.000,- k.k.
  • Status: Verkocht
  • Aanvaarding: In overleg

Oppervlakte en inhoud

  • Woonoppervlakte: 55 m2

Indeling

  • Aantal woonlagen: 2
  • Totaal aantal kamers: 3
  • Aantal slaapkamers: 1
  • Aantal badkamers: 1

Bouw

  • Soort woning: Bovenwoning
  • Soort bouw: Bestaande bouw
  • Bouwjaar: 1934
  • Energielabel: C
  • Isolatie: Grotendeels dubbelglas
  • Soort dak: Samengesteld dak
  • Verwarming: CV ketel
  • Warm water: CV ketel

Buiten

  • Ligging: Aan rustige weg, In woonwijk
  • Tuin: Geen tuin
  • Parkeergelegenheid: Betaald parkeren, Parkeervergunningen

Meer informatie over soortgelijke woningen

Deze woning is helaas al verkocht of verhuurd. Wil je op de hoogte worden gebracht als er een soortgelijke woning beschikbaar komt? Vul het formulier in en ik neem contact met je op als dit het geval is. Heb je een dringende vraag? Bel dan 0629310880, of stuur mij een bericht via Whatsapp of per e-mail.

Dit veld is bedoeld voor validatiedoeleinden en moet niet worden gewijzigd.
Ik wil graag(Vereist)
Naam
Dit veld is verborgen bij het bekijken van het formulier
Dit veld is verborgen bij het bekijken van het formulier

We gebruiken je gegevens alleen om contact met je op te nemen of een bezichtiging te plannen. Zie ook onze privacyverklaring.

Vergelijkbare woningen in de buurt

Bekijk alle woningen