Te koop

Appartement, Groenewoud 44a in Vlissingen

€ 190.000,- k.k.
D
68 m2 woonoppervlakte - 4 kamers

Omschrijving

Midden in het levendige centrum van Vlissingen, op loopafstand van het Bellamypark, de Walstraat, de Boulevard, de zee en het strand, vindt u dit ruime appartement (type maisonnette) met een ruim balkon. Dit rijksmonument heeft een charmante uitstraling, ligt aan een rustig en groen plein en biedt een unieke kans om te genieten van de sfeer van deze maritieme badplaats, met alle voorzieningen binnen handbereik. Het appartement beschikt o.a. over een woongedeelte aan de pleinzijde met een open keuken, 3 slaapkamers en een stenen berging.

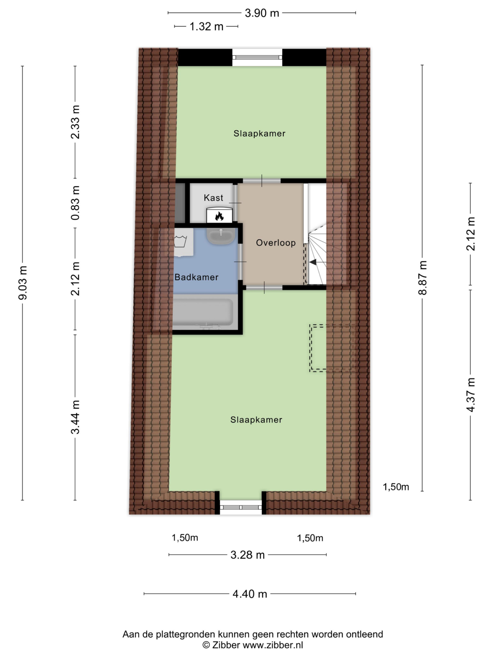
Indeling:
Eerste verdieping
Entree met meterkast en toegang tot de lichte woonkamer met hoge ramen en een open keuken. De keuken is voorzien van een eenvoudig recht keukenblok.
Aan de achterzijde biedt de woonkamer toegang tot een gang met trapopgang naar de verdieping, een toiletruimte en de aan de achterzijde gesitueerde (slaap)kamer met toegang tot het ruime balkon op het zuidoosten.

Tweede verdieping
Overloop met toegang tot een tweetal slaapkamers, de badkamer en een kast met de opstelplaats voor de cv-ketel (Intergas HRE 2023)
De badkamer beschikt over een ligbad met douche, wastafel en aansluitingen voor de wasapparatuur.

Bijzonderheden
– Rijksmonument;
– Ruim balkon gelegen op het zuidoosten;
– Eigen stenen berging op de begane grond;
– Intergas HRE cv-combiketel (2023) voor warm water en verwarming;
– Centrale ligging: alles wat Vlissingen te bieden heeft, is op steenworp afstand gelegen.
– Betreft een VVE in oprichting, de makelaar kan u hierover meer vertellen.

Overige voorwaarden
Bij de koopovereenkomst worden de volgende clausules opgenomen (zie de verkoopdocumenten voor de volledige tekst):
– Asbestclausule
– ‘AS IS, WHERE IS’
– Lijst van zaken
– Energielabel
– Personalia
– Overdrachtsbelasting
– Projectnotaris
– Eigen notaris
– Aanvulling op artikel 6.2
– Mogelijkheid tot vervroegen of uitstellen van de datum van eigendomsoverdracht
– Toestemming voor uitwisseling van persoonsgegevens

Deze woning biedt niet alleen een praktische indeling, maar ook de mogelijkheid om direct te genieten van het bruisende stadsleven en de maritieme sfeer van Vlissingen.
Wilt u meer weten of een bezichtiging inplannen? Neem dan contact met ons op!

Kenmerken Appartement, Nederland koop Appartement Vlissingen Groenewoud 44a

Overdracht

  • Adres: Groenewoud 44a, 4381 HE Vlissingen
  • Vraagprijs: € 190.000,- k.k.
  • Status: Verkocht onder voorbehoud
  • Aanvaarding: In overleg

Oppervlakte en inhoud

  • Woonoppervlakte: 68 m2

Indeling

  • Aantal woonlagen: 2
  • Totaal aantal kamers: 4
  • Aantal slaapkamers: 3
  • Aantal badkamers: 1

Bouw

  • Soort woning: Maisonnette
  • Soort bouw: Bestaande bouw
  • Bouwjaar: 1899
  • Energielabel: D
  • Isolatie: Gedeeltelijk dubbelglas
  • Soort dak: Schilddak
  • Verwarming: CV ketel
  • Warm water: CV ketel

Buiten

  • Ligging: In centrum
  • Tuin: Zonneterras
  • Parkeergelegenheid: Betaald parkeren, Parkeergarage, Parkeervergunningen

Groenewoud 44a op de kaart

Street View

Houd mij op de hoogte

Helaas, deze woning is verkocht onder voorbehoud. Wil je een notificatie ontvangen als de woning toch weer beschikbaar komt?

Dit veld is bedoeld voor validatiedoeleinden en moet niet worden gewijzigd.
Ik wil graag:(Vereist)
Naam
Dit veld is verborgen bij het bekijken van het formulier
Dit veld is verborgen bij het bekijken van het formulier

We gebruiken je gegevens alleen om contact met je op te nemen of een bezichtiging te plannen. Zie ook onze privacyverklaring.

Vergelijkbare woningen in de buurt

Bekijk alle woningen