Kenmerken Appartement, Nederland koop Appartement Haarlem Julianalaan 299
Overdracht
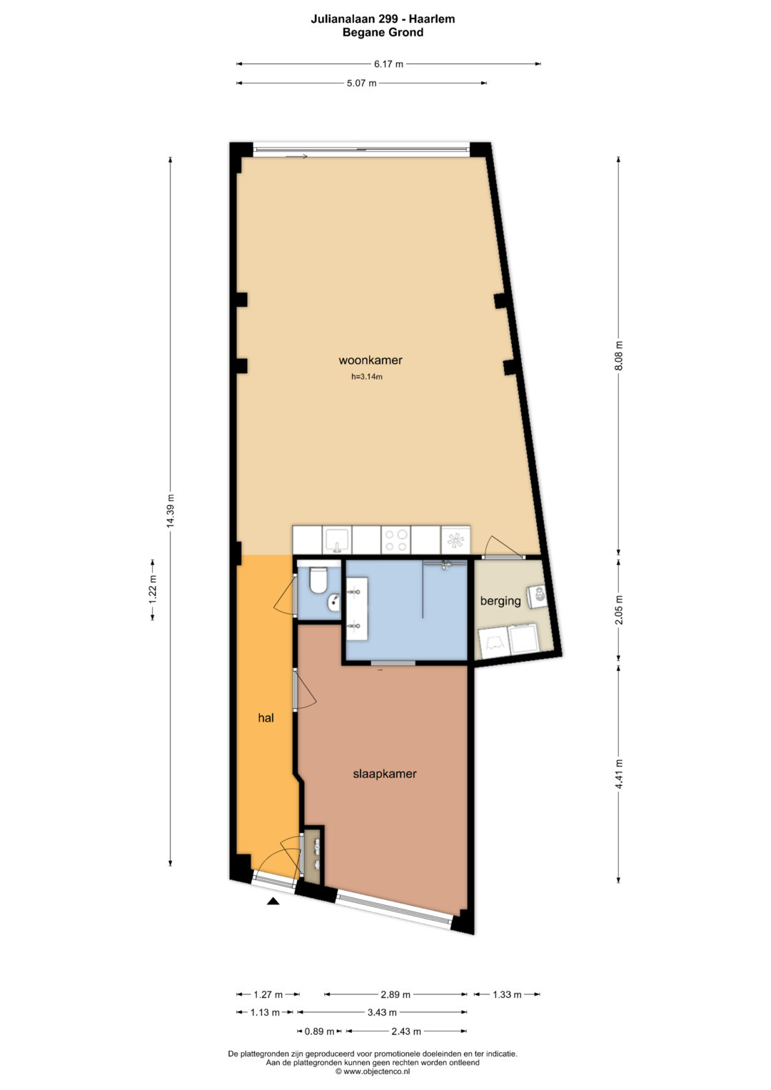
- Adres: Julianalaan 299, 2015 BN Haarlem
- Vraagprijs: € 565.000,- k.k.
- Status: Beschikbaar
- Aanvaarding: In overleg
Oppervlakte en inhoud
- Woonoppervlakte: 81 m2
Indeling
- Aantal woonlagen: 1
- Totaal aantal kamers: 2
- Aantal slaapkamers: 1
- Aantal badkamers: 1
Bouw
- Soort woning: Portiekflat
- Soort bouw: Bestaande bouw
- Bouwjaar: 1910
- Energielabel: A
- Isolatie: Volledig geïsoleerd
- Verwarming: CV ketel, Vloerverwarming geheel
- Warm water: CV ketel
Buiten
- Ligging: In woonwijk
- Tuin: Achtertuin, Voortuin
- Parkeergelegenheid: Op eigen terrein
Julianalaan 299 op de kaart
Street View
Meer informatie of bezichtiging
Vul het formulier in en ik neem binnen één werkdag contact met je op. Heb je een dringende vraag? Bel dan 0633917530, of stuur mij een bericht via Whatsapp of per e-mail.
We gebruiken je gegevens alleen om contact met je op te nemen of een bezichtiging te plannen. Zie ook onze privacyverklaring.
Vergelijkbare woningen in de buurt
Beschikbaar
Beschikbaar
Beschikbaar



